Anúncios

Hahn Imoveis Brasil-Alemanha

Hahn Imoveis Brasil-Alemanha

Dr. Andreas Hahn

Telefone: +49 151 68159883 Alemanha, +11 97110-1705 Brasil

Mais informações

RJ-Rio de Janeiro - Rio de Janeiro
Bairro: Itanhangá
R. Eng. Neves da Rocha

R$ 3.300.000,00

N° da matrícula do imóvel:
não informado

Quartos: 5 Área constr.: 450 m²
Suítes: 5 Área total: 800 m²
Salas: 2 Vagas: 4

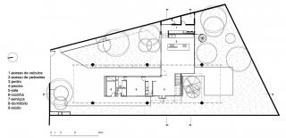
Casa particular com 450 m² e 5 suítes, construção de primeira linha e ganhadora de diversos prêmios de arquitetura

Descrição do imóvel

Diferente de muitas listagens comerciais comuns em que a palavra ?único? é usada de forma bastante indiscriminada, neste caso ?único? pode ser entendido literalmente: a casa foi projetada de acordo com um projeto arquitetônico premiado que não possui propriedades comparativas no Rio de Janeiro.

Este destacado empreendimento residencial situado no bairro de Itanhangua, subúrbio do Rio de Janeiro, com clima quente e úmido, foi construído em um terreno de 800 m² com forte presença de árvores de tamanho e idade marcantes. Portanto, a solução foi construir uma casa com o menor impacto possível no meio ambiente existente. Uma casa elevada em meio à copa das árvores, em perfeita harmonia com a profusa natureza de um clima tropical. Painéis de concreto, estrutura de aço, janelas de madeira e vidro são os materiais usados ??para construir esta casa de charme.

Endereço: R. Engenheiro Neves da Rocha - Rio de Janeiro - RJ
Assunto: Design, design de interiores <
Tamanho do terreno: 900m2
Área construída: 400m2
Data do projeto: 2001
Data de conclusão da construção: 2003
Equipe do projeto: Fabiana Terenzi Stuchi
Arquitetos de projeto: José Armênio Brito Cruz

Taxa mensal de condomínio: R $ 1.200 (Condomínio Águas do Itanhangá)

IPTU (por mês): R $ 1.600

Em 2008 foi publicado no Journal for Architecture and Urbanism:

http://www.piratininga.c om.br/revista_au169_2008.html

Você pode encontrar mais referências a esta casa particular na internet:

https://www.homedsgn.com /2012/05/21/residence-in-itanhanga- by-piratininga-arquitetos-associado s/

https://www.archdaily.com.br/br /01-36589/residencia-itanhanga-pira tininga-arquitetos-associados

Part icipou até do livro ?Casas Brasileiras?, do autor Roberto Segre.

http://www.bkweb.com.br/pub lications/books/casas-brasileiras/

Toda a documentação está em ordem: escritura e registro de escritura. Não há dívida ou ônus de espécie alguma.

Sobre Nos:

A Hahn Consultoria Imobiliária (Internacional), fundada em 1991 na Alemanha (Berlim e Chemnitz), é composta por profissionais habilitados e conhecedores do mercado imobiliário brasileiro. Tendo experiência abrangente para que seus clientes possam sempre realizar um ótimo negócio:

- Elaboração de contratos imobiliários em geral por corretores com CRECI;
- Regularização de documentação;
- Acompanhamento do processo de venda
- Avaliações

Temos representações na Alemanha (Dr. Andreas Hahn), Salvador (João Mauricio Massapê, CRECI J-01411) e Natal (Mike Smith 3125-F-RN).

contato whatsapp: +49 151 68159883 (Alemanha)

Anunciante

Hahn Imoveis Brasil-Alemanha RSS

Responsável: Dr. Andreas Hahn
CRECI: 840279 - Alemanha (Stollberg)
Endereço: Viaduto Nove de Julho 165
01050-060 São Paulo
SP-São Paulo
Telefone: +49 151 68159883 Alemanha, +11 97110-1705 Brasil
Fax: +49 37298 2467

Mais imobiliárias Rio de Janeiro
Mais Imóveis em Rio de Janeiro

Profissionais em Rio de Janeiro

Outros Casas para Venda em Rio de Janeiro

Casa Alto Padrão Ilha da Guaratiba
Casa Alto Padrão Ilha da Guaratiba
5 Quartos
5 Suítes
4 Vagas
Área constr.: 280 m²
R$ 1.500.000,00
Maravilhosa casa Condomínio Rio Mar na Barra da Tijuca - 1ª. Locação
Maravilhosa casa Condomínio Rio Mar na Barra da Tijuca - 1ª. Locação
Bairro: Barra da Tijuca
5 Quartos
5 Suítes
4 Vagas
Área constr.: 350 m²
R$ 2.700.000,00
Casa 5 Suítes Vista Deslumbrante Da Praia  Da Barra
Casa 5 Suítes Vista Deslumbrante Da Praia Da Barra
Bairro: Barra da Tijuca
5 Quartos
5 Suítes
4 Vagas
Área constr.: 600 m²
R$ 5.550.000,00
Ganhe 2 Passagens Aéreas Paris Comprando Esta Mansão   900M2 Nova R$5.600.000,00
Ganhe 2 Passagens Aéreas Paris Comprando Esta Mansão 900M2 Nova R$5.600.000,00
Bairro: BARRA DA TIJUCA
5 Quartos
5 Suítes
4 Vagas
Área constr.: 650 m²
R$ 5.600.000,00
Casa de 5 quartos 4 vagas Joatinga RJ ama2971
Casa de 5 quartos 4 vagas Joatinga RJ ama2971
5 Quartos
5 Suítes
4 Vagas
Área constr.: 500 m²
R$ 7.500.000,00
ITANHANGÁ-VENDA DE MANSÃO
ITANHANGÁ-VENDA DE MANSÃO
Bairro: ITANHANGÁS
5 Quartos
5 Suítes
4 Vagas
Área constr.: 997 m²
R$ 10.500.000,00
Casa em Campo Grande 3 Pav/ prox ao West Shopping 5 Suites / 2 salas / Coz Dinamarquesa
Casa em Campo Grande 3 Pav/ prox ao West Shopping 5 Suites / 2 salas / Coz Dinamarquesa
Bairro: Campo Grande
5 Quartos
5 Suítes
2 Vagas
Área constr.: 300 m²
R$ 350.000,00
Casas Recreio- Sunrise House Garden/ Fiaanc. com a construtora doc. por nossa conta
Casas Recreio- Sunrise House Garden/ Fiaanc. com a construtora doc. por nossa conta
5 Quartos
5 Suítes
2 Vagas
Área constr.: 153 m²
R$ 1.500.000,00
Privacidade e exclusividade para poucos
Privacidade e exclusividade para poucos
Bairro: Itanhangá
5 Quartos
5 Suítes
5 Vagas
Área constr.: 450 m²
R$ 1.700.000,00
Montain Green - Casa duplex de 5 quartos com 600m2
Montain Green - Casa duplex de 5 quartos com 600m2
Bairro: Recreio dos Bandeirantes
5 Quartos
5 Suítes
3 Vagas
Área constr.: 600 m²
R$ 1.950.000,00

Busca por + imóveis desse tipo:

Casas para Venda na cidade de Rio de Janeiro em RJ-Rio de Janeiro de 5+ quartos com 5+ suítes para 4 carros até 3.300.000,00
Encanadores Rio de Janeiro
Limpeza Rio de Janeiro
Pintores Rio de Janeiro
Arquitetos Rio de Janeiro
Imobiliárias Rio de Janeiro
[Sua publicidade aqui?]
Anúncios